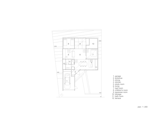
Avoiding the removal of a hard hill as much as possible, a roof simply covers the residence. Extended in steps, the residence is made with 3 meter by 3 meter grid steel frame that supports roof. The space is composed of boxes that receive bedroom, children’s room and wet area and the rest is left out of boxes. Above them high side light that penetrate through the roof, which undulates like mountain range, in 45-degree angle light up the interior brightly.
Until then we often thought about spaces made of surfaces in consideration to expression of shades. Here in order to emphasize the condition of saw-tooth roof floating on natural topography, we introduced line expression of exposed steel beam without putting up ceilings.
The beam is kept small to 100 millimeter by 148 millimeter. The same sized braces are a part of roof that supports high side light. Like so, any structural waste is shaved off, but by the multiplier effect of the thinness and the 45-degree an extensive feeling and calmness similar to under trees was achieved. On the other hand, box spaces have 100 millimeter thick walls made with painted off 100 millimeter square columns. Exposed roof deck ceiling is matt white and the surfaces softly reflect light.
The three logical rules, the natural topography, grid structure, and 45 degree tilted high side light that face the south, are respectively independent, but overlap each other and secure functionality that extends as far as possible, the architecture
site / Hyogo, Japan
site area / 232.31m2
building area / 99.87m2
total floor area / 99.87m2
building scale / single storey
structure system / steel
structural engineer / Eisuke Mitsuda (Mitsuda Structural Consultants)
complete / 2010
photo credit / Kai Nakamura





















