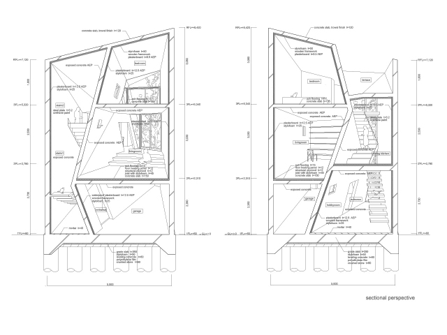
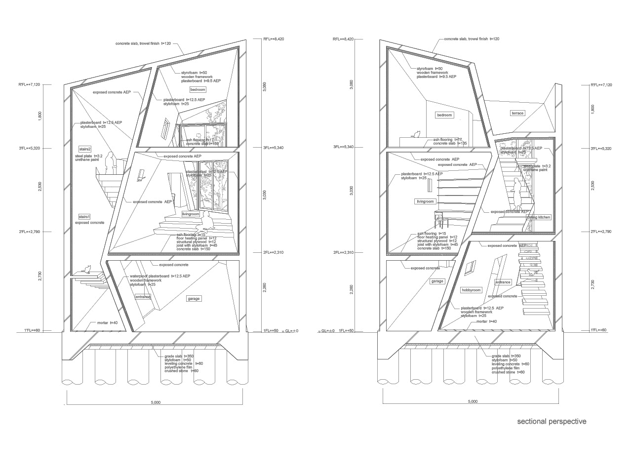
夫婦二人と猫たちの住むコートハウスが出発点だが、大阪の密集した住宅地では中庭型のコートは平面的に難しかった。また少人数の家では、使わない部屋も多く、今使う、機能をわりあてられた部屋に隣の部屋も参加するような住宅を考えた。
敷地の東西に2ヶ所、三角形の庭をもうけたひし形の平面。庭に開くよう壁で住宅全体をふたつに分割したが、1階では駐車のためひし形を対角線で割り、3階では水まわり・収納・寝室をコンパクトかつ機能的におさめるため東西に平行に割っている。1階と3階で角度のことなる分割線を成立させるため分割壁全体を3次元的な対角線でおりまげ、傾く3角形の壁2枚からなるfolded wallとした。この結果部屋の形が、1階から3階へ平面的かつ断面的につねに変化する。fig.1
すべての部屋は庭に対して壁から壁、スラブからスラブまでの開口をもち直接光がはいるが、梁をもうけていないため筒状の光が、部屋の奥へときれいに減衰する。一方で隣接する部屋も反対の庭からの直接光で照らされているため、戸口ごしにきりとられた隣室の壁は、まるでコートの壁のように明るく感じられる。fig.2
このように一枚の壁が3次元的におりまげられていることで、室と室の関係が立体的なものとなり、また両面から自然光に照らされていることで、多彩な光のグラデーションが、室内にとどまるとき、そして室から室へと壁をとおるときに多様な距離感をもたらす。静的なコートに対する動的なコート、開放感と落ち着きをあわせもった建築の提案である。
use | housing
site | Osaka, Japan
site area | 75.93㎡
building area | 40.00㎡
total floor area | 102.03m2
building scale | 3 stories
structure system | reinforced concrete construction
structural engineer | Eisuke Mitsuda
/ Mitsuda Structural Consultants
complete | 2011
photo credit | Kai Nakamura
site | Osaka, Japan
site area | 75.93㎡
building area | 40.00㎡
total floor area | 102.03m2
building scale | 3 stories
structure system | reinforced concrete construction
structural engineer | Eisuke Mitsuda
/ Mitsuda Structural Consultants
complete | 2011
photo credit | Kai Nakamura
2011-07-20House Folded
2010-11-19INAX Design Contest 入賞




















