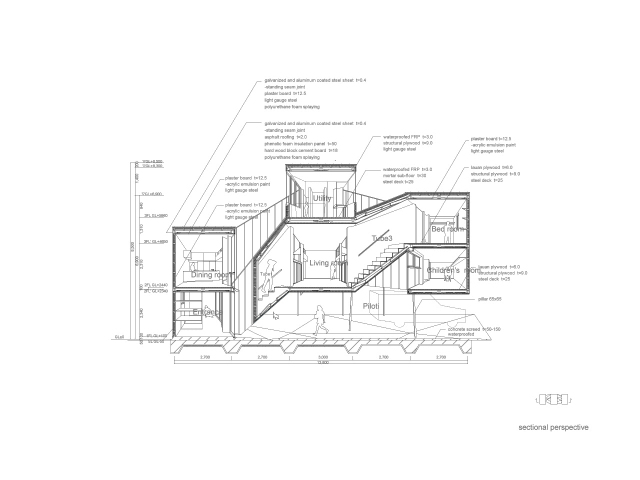
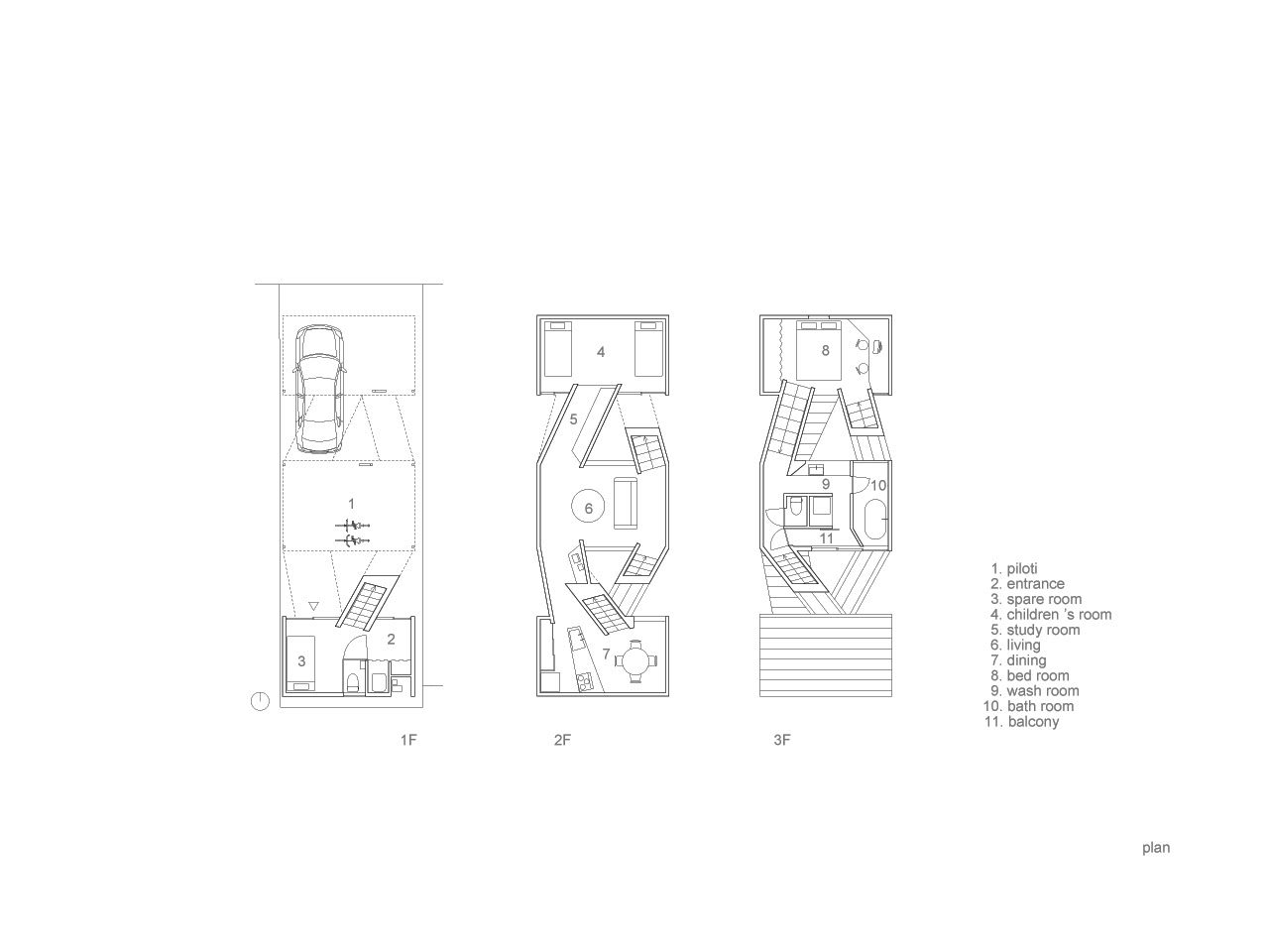
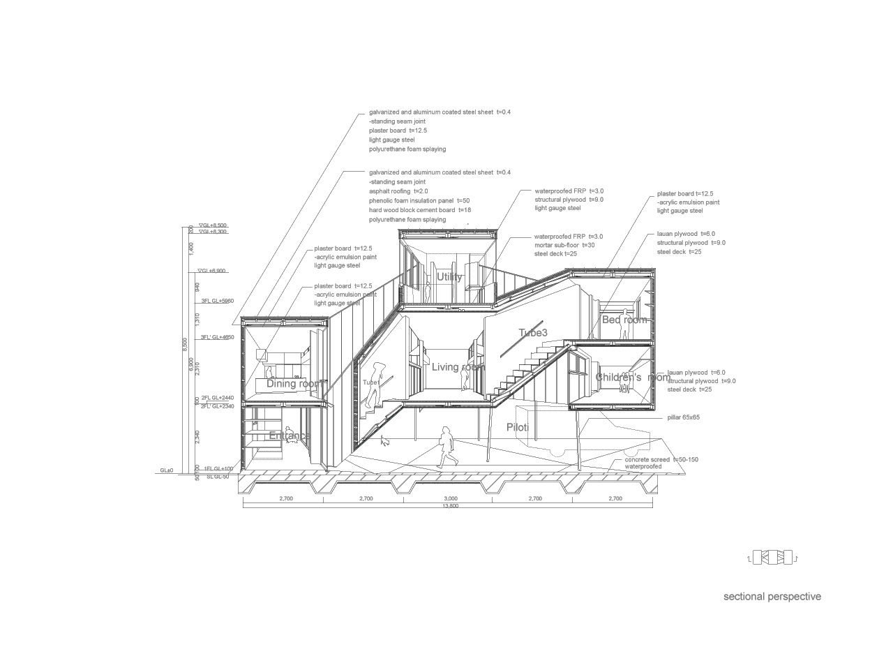
大阪都心の住宅。採光のため、ふたつの中庭をもつ3つの棟からなり、部屋と部屋はそれぞれ中庭を横断するチューブ状の廊下あるいは階段室でつながる。通過頻度の高い部屋にはたくさんのチューブがつながり、住宅内には幾重にもループを描く動線が実現する。部屋と部屋の関係は一義的には決まらず、動き方によって、関係も空間の様相も変化する。また空に穴をうがつチューブは、内部空間同士をわけながらつなぐだけでなく、建てこんだ周辺の環境をさえぎりながら、かいまみせる。
use | residence
site | Osaka, Japan
site area | 83.69 sqm
building area | 58.78 sqm
total floor area | 151.65 sqm
building scale | 3 stories
structure system | steel
structural engineer | Ichiro Hashimoto;
S3 Associates Inc
complete : 2011
photo credit | Shigeo Ogawa
site | Osaka, Japan
site area | 83.69 sqm
building area | 58.78 sqm
total floor area | 151.65 sqm
building scale | 3 stories
structure system | steel
structural engineer | Ichiro Hashimoto;
S3 Associates Inc
complete : 2011
photo credit | Shigeo Ogawa
2013-04-30International Property Awards 受賞
2012-06-22AR House award 2012 入選
2011-08-03JDN掲載
2010-07-02空中ブリッジ


































