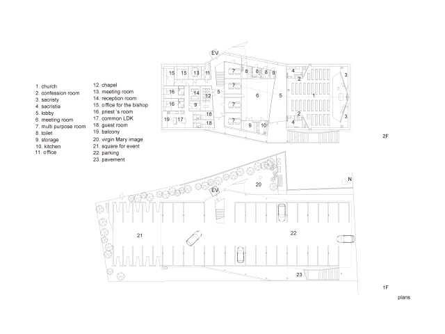
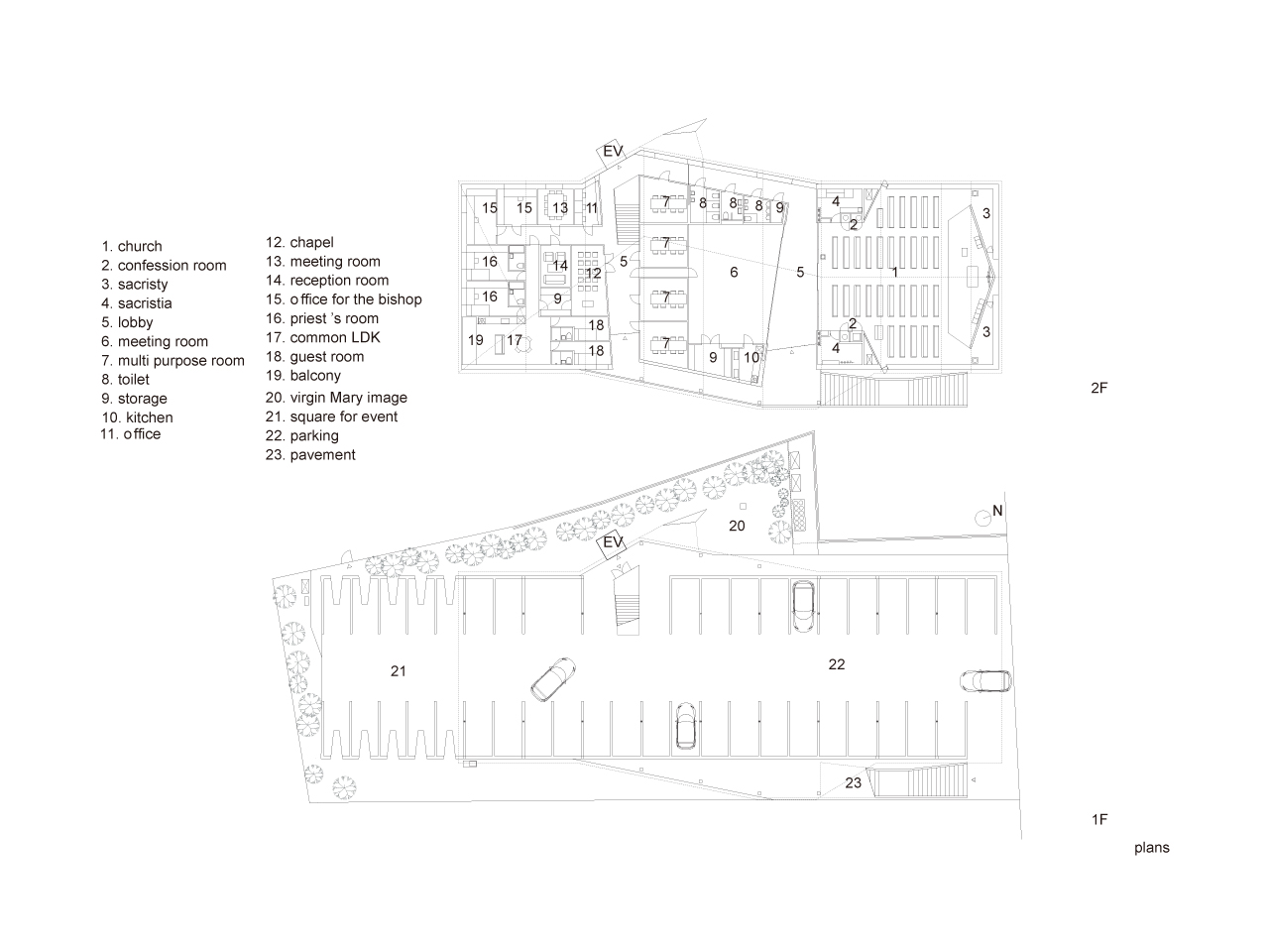
A church located at the city of the motor industry, consisted of a chapel, meeting are and father’s residence. As multinational Catholics are increasing rapidly, it was required to provide not only a meditation space but also gathering place for the foreign people. And also existing church buried in the neighbourhoods located at the intersection of the old way and the new motorway, we proposed a big one expressive roof, which reminds of the beautiful mountain range surrounds this area, to unite three different usage buildings. The whole church is lifted up to gain the enough car park area for masses on Sundays, and the roof is split every five meters, parking lot module, to make high-side lits that introduce the natural light from the south into interior where rooms of various sizes from chapel to bedroom are crowded. The piloti and the two entrance lobbies on the second floor are connected with two gentle incline staircases and form a plaza under the roof where people gather not separated from motorized city.
We made a video for our new project, Catholic Suzuka Church.
This project is published on Shinkenchiku 2015:10 which is one of the most influential architectural magazine in Japan.
Please check it out.
















