2019-05-21 NEWS

KIZUNAYA building

KIZUNAYA building

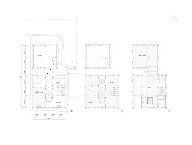
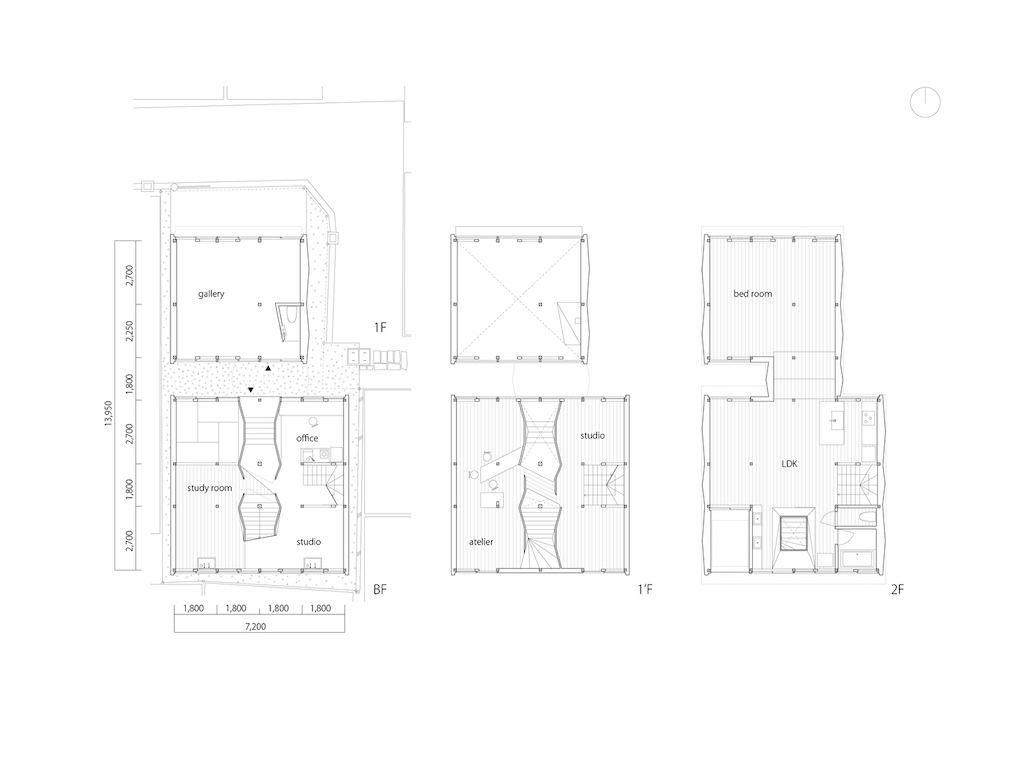
The atelier, gallery, and residence for mourning jewelry artist are integrated in one building at central Kyoto. Here, the designer, who specializes in commemorative jewelry that enclose hairs and ashes of the deceased loved ones, shares the jewelry making process with his guests from all over Japan. The building is consist of wooden frame of the traditional module, the longitudinal wooden wall forming the gate which welcomes guests, and the layers of openings which assure the transparency towards the street as the traditional townhouses. We superimposed such rules and inserted wave walls sandwiching the staircase between the drawing room and the production room to make the 3-dimensionally rich relations between different but continuous programs. At last, each space as working making or living space faces the city with having different distance. The programs and contexts resonate each other.

RELATED WORKS